Offers Over:
£165,000
Information
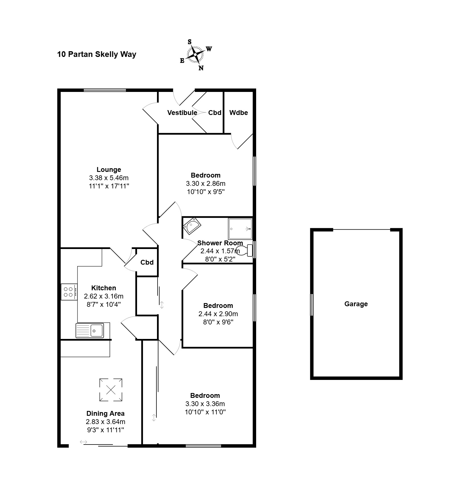
Floorplan
We are pleased to bring to the market this extremely spacious three bedroom semi detached bungalow with single garage. Offering well-appointed accommodation on one level, the property benefits from double glazing, gas central heating and will be sold complete with all floor coverings, curtains, blinds, light fittings and kitchen appliances.
Cove is a delightful coastal village situated to the south of Aberdeen with regular public transport readily available. The area also offers easy access to the industrial estates at Altens, Tullos and Portlethen. A wide range of amenities can be found within the village itself including several local shops, community centre and library. Schooling at primary level is also catered for within the village and secondary education is close by.
Features
Accommodation:
Entrance Porch
Fitted cupboard with louvred doors providing shelving and hanging. Matwell. Radiator.
Lounge
A lovely bright and airy lounge with a large picture window overlooking the front of the property. Feature electric fire with pebble effect. Curtains and Vertical blinds. Radiator.
Fully Fitted Kitchen
Fitted with a good range of wall and base units providing ample storage and worktop space. The gas cooker, extractor fan fridge freezer and washing machine will be included in the sale price. There are two fitted cupboards, one housing the central heating boiler. Tile effect vinyl flooring.
Dining Room
Patio doors give access to the rear garden. Low level cupboard housing the tumble dryer. Vertical blinds. Radiator.
Rear Hallway
Access to a floored loft space with Ramsey ladder. Carpeted. Smoke alarm.
Double Bedroom (1)
A spacious double bedroom with window overlooking the rear garden. Wall to wall wardrobes with a good range of shelving and hanging space. Vertical blinds. Carpeted. Radiator.
Double Bedroom (2)
Overlooking the side of the property. Walk in storage cupboard. Carpeted. Radiator.
Bedroom (3)
Window to side. Curtains. Carpeted. Radiator.
Shower Room
A fully tiled shower room, fitted with WC, wash hand basin and separate shower cubicle. Window to side with roller blind. Radiator.
Outside
To the front lies a very low maintenance garden which is laid in stone chips.
Large driveway with space for 4 vehicles leads to a single garage with power and light. Outside water tap.
The rear garden is again low maintenance with a large patio area ideal for alfresco dining.
Single Garage
With up and over door, power and light.
Whilst the foregoing particulars and measurements have been prepared in good faith and are believed to be correct, they are intended to be for the general guidance only of prospective purchasers and should not be founded on in any circumstances. All measurements are approximate, and the property is sold in its present state of repair.