Offers Over:
£225,000
Information
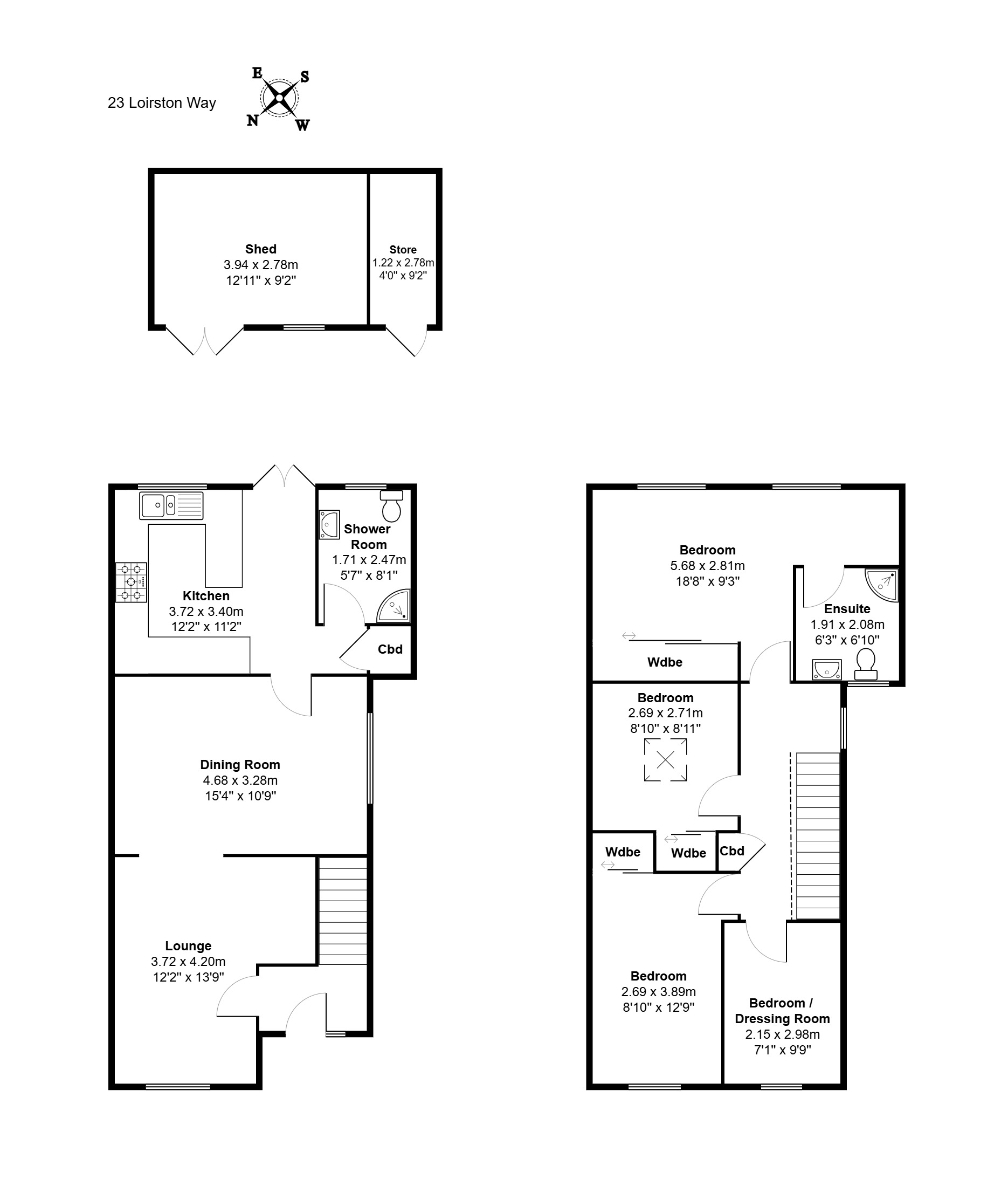
Floorplan
We are delighted to offer for sale this four bedroom/two public semi-detached family home, presented in pristine condition throughout.
Spanning two floors the property boasts upgraded double glazing, gas central heating, a burglar alarm system and the added advantage of a large outside cabin with bar, ideal for entertaining. The house has been decorated to a high standard and the kitchen and both shower rooms have been upgraded by the current owners. All fitted floor coverings, curtains, blinds, light fittings and kitchen appliances will be included in the sale price. There will be an option to purchase furniture by separate negotiation.
Cove is a delightful coastal village situated to the south of Aberdeen with regular public transport readily available. The area also offers easy access to the industrial estates at Altens, Tullos and Portlethen. A wide range of amenities can be found within the village itself including several local shops, community centre and library. Schooling at primary level is also catered for within the village and secondary education is close by.
Features
Accommodation:
Entrance Hallway
Carpeted staircase leading to the upper floor. UPVC double glazed door and side panel.
Lounge
A lovely lounge with an abundance of natural light coming from the front of the property with an open outlook over the cul-de-sac. Built in high quality low level grey gloss storage unit. Curtains and roller blind. Ceiling spotlights. Carpeted. Radiator. Archway leading to Dining Room.
Dining Room
An extensive dining room, ideal for entertaining. Window to side with roller blind. Carpeted. Access to Kitchen and Shower Room.
Fully Fitted Kitchen
This beautiful high quality kitchen has been fitted with a wide range of white gloss wall and base units with contrasting worktop space. Integral hob, extractor hood, double oven, microwave, washing machine, dishwasher and large fridge and separate freezer. Sink and drainer. Window to rear and patio doors give access to the rear garden. Tiled flooring.
Shower Room
A luxurious shower room fitted with WC, wash hand basin in vanity units and a large separate shower enclosure. Tiled flooring. Heated towel rail.
Upper Hallway
Window to side giving natural light. Floored loft space. Access to all bedrooms. Fitted linen cupboard. Carpeted. Smoke alarm.
Master Bedroom
Spacious, well decorated double bedroom with two windows overlooking the rear with roller blinds and curtains. Mirror fronted wardrobes providing ample shelving and hanging space. Ceiling spotlights. Carpeted. Radiator. Door to En-Suite Shower Room.
En Suite Shower Room
A high quality shower room fitted with WC, wash hand basin with build in vanity unit and large shower enclosure. Heated towel rail.
Double Bedroom (2)
Another good sized double bedroom with Velux window and black out blind. Mirror fronted wardrobe. Ceiling spotlights. Carpeted. Radiator.
Double Bedroom (3)
Overlooking the front with a lovely open outlook this double bedroom has mirror fronted wardrobes providing ample shelving and hanging space. Curtains and black out roller blind. Radiator. The wall mounted TV will be included in the sale price.
Bedroom (4)/Dressing Room
This room situated to the front has had shelving and hanging rails fitted to both sides but can easily be removed. Black out roller blind. Carpeted.
Outside
To the front lies a driveway and a gate to the side giving access to the rear garden.
The rear garden is a fully enclosed space with newly laid composite decking providing a clean modern outdoor space. Rotary dryer and outside lighting.
A large double glazed cabin, currently providing an outdoor space for entertaining with a bar but could be easily adapted for other uses such as a home office or teenage den.